Verkauf in DD-Löbtau: Frisch sanierte 3-Raum-Terrassenwohnung im Innenhof, für Eigennutzer!

- Dresden
- Eigentumswohnung
- 76,04 m²
- 3 Zimmer
- 1 Schlafzimmer
- 1 Badezimmer
o.A. EUR
01159 Dresden
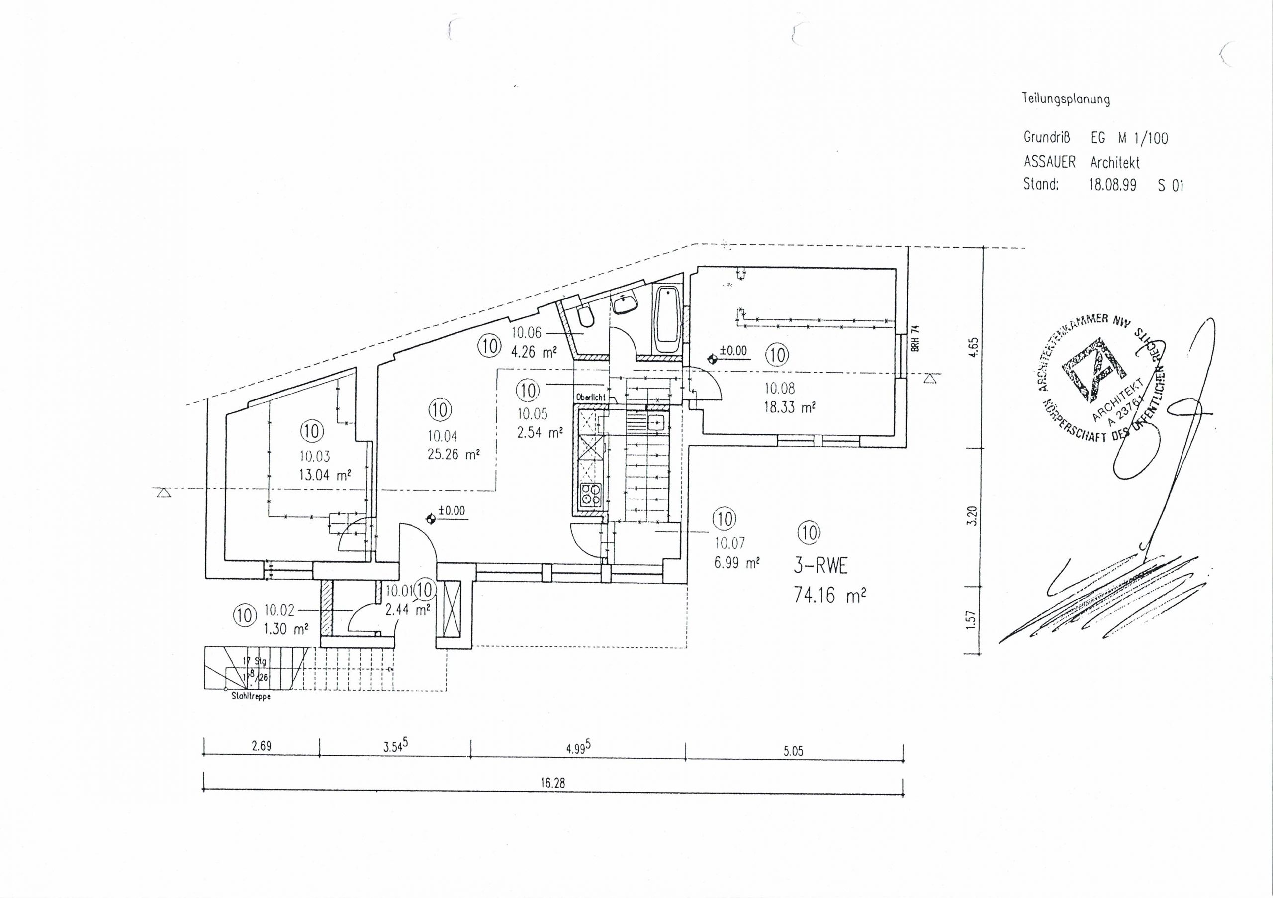
Diese lichtdurchflutete und sanierte 3-Raum-Erdgeschoss-Wohnung in einem freistehenden 2-geschosssigem Gebäude in einem Innenhof in Dresden-Löbtau wurde inzwischen erfolgreich verkauft.
Details
| Objekt ID: | 2024002 |
| Verfügbar ab: | sofort |
| Kaufpreis: | o.A. EUR |
| Lage: | Erdgeschoss |
| Ausbaustufe: | voll ausgebaut |
| Bauweise: | konventionell/Ziegel |
| Befeuerung: | Gas |
| Wohneinheiten: | 11 |
| Zimmer: | 3 |
| Schlafzimmer: | 1 |
| Badezimmer: | 1 |
| Kellerräume: | 1 |
| Wohnfläche: | 76,04 m² |
| Gesamtfläche: | 81,66 m² |
| Nutzfläche: | 81,66 m² |
| Etage: | Erdgeschoss / 2 (Nebengebäude) |
| Baujahr: | 1900 |
| Letzte Renovierung: | 2003/2024 |
| Objektzustand: | gepflegt |
| Ausstattungskategorie: | mittel |
Merkmale
BarrierefreiGartenTerrasseKeller
Energiedaten
| Heizungsart: | Erdgas |
| Befeuerungsart: | Erdgas E |
| Art des Energieausweises: | verbrauchsorientiert |
| Energieausweis gültig bis: | 2028 |
| Energieeffizienzklasse: | D |
| Baujahr lt. Energieausweis: | 1900 |
Dokumente
- Dresden
- Eigentumswohnung
- 76,04 m²
- 3 Zimmer
- 1 Schlafzimmer
- 1 Badezimmer
o.A. EUR
01159 Dresden
Durch die Nutzung von Google Maps können Userdaten an einen Server von Google in den USA übertragen und dort gespeichert werden. Bitte beachten Sie dazu auch unsere Datenschutzerklärung.






























